-
- 2017 UMBAU/RENOVATION WOHNUNG - BASEL
- MCCLEAN HYGIENECENTER
- 2005 BAHNHOF SBB CH - BASEL
- 2000 HAUPTBAHNHOF DE - HANNOVER
- 1998 HAUPTBAHNHOF CH - ZüRICH
- 1996 BAHNHOF DE - LEIPZIG
- 1995 BAHNHOF ZOO, DE - BERLIN
- 1994 BAHNHOF CH - BERN
- 1990 BADRAUMSYSTEM RUCKSTUHL
- ARZTPRAXEN
- 2014 GEMEINSCHAFTSPRAXIS DE OVERATH
- 1986 GEMEINSCHAFTSPRAXIS CH - BASEL
- 1980 ARZTPRAXIS CH - MUHEN
- 1980 KINDERARZTPRAXIS CH - RIEHEN
- 1989 GESCHäFTS- UND AUSSTELLUNGSRäUME RUCKSTUHL IT MILANO
- 1986 GESCHäFTS- UND AUSSTELLUNGSRäUME PERSONAL DESIGN IT MILANO
- 1985 STANDGESTALTUNG ISH FRANKFURT
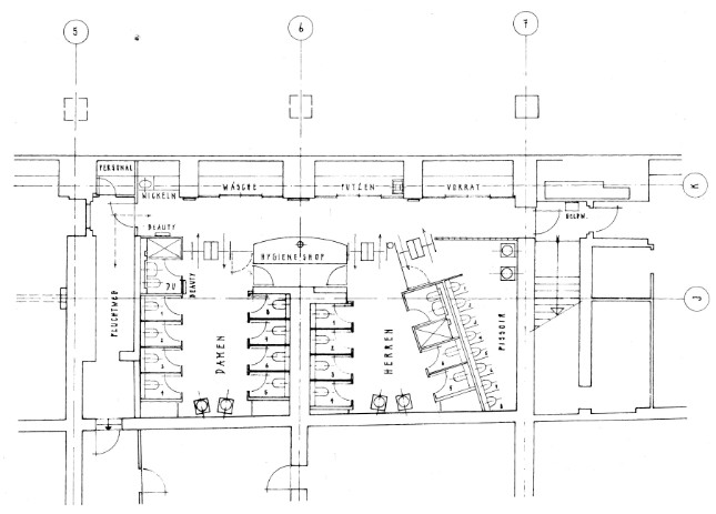
McClean Hygienecenter
Die Keramik Holding AG Laufen beauftragte ein innovatives Bausystem, um an den grossen europäischen Bahnhöfen zeitgemässe Hygienecenter einzurichten.
Der verheerende Zustand bestehender Anlagen wurde in allen Aspekten untersucht, repräsentative Umfragen analysiert.
Ziel war es, lustvolle Orte der Erleichterung und Pflege zu kreieren, ansprechende Orte der Ruhe und Entspannung. Passend zum gewünschten Erscheinungsbild von McClean, wurde ein System aus vorgefertigten “Bausteinen” entwickelt. Dieses fügt sich in die unterschiedlichsten Architekturen ein zu eigenständigen Räumen mit unverwechselbarem Bezug zum Ort.
Die McClean Hygienecenter werden kontinuierlich in den grossen Bahnhöfen Europas umgesetzt.
